REQUEST A TOUR If you would like to see this home without being there in person, select the "Virtual Tour" option and your agent will contact you to discuss available opportunities.
In-PersonVirtual Tour

$ 84,900
Est. payment | /mo
1 Bed
1 Bath
397 SqFt
$ 84,900
Est. payment | /mo
1 Bed
1 Bath
397 SqFt
Key Details
Property Type Manufactured Home
Listing Status Active
Purchase Type For Sale
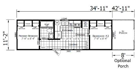
Square Footage 397 sqft
Price per Sqft $213
Bedrooms 1
Full Baths 1
Property Description
Own your home and start building equity! Brand new, energy-efficient tiny homes coming soon to Lantern Lane in Portland.Enjoy a modern design with great natural light, an open living space, and stylish finishes throughout. These homes are thoughtfully designed to maximize space and comfort, with quality construction by Champion.All Kitchen appliances included. Choose from multiple floor plans and personalize your home with upgrade options like covered porches, lofts, and enhanced interior finishes—options available at different price points.Lantern Lane is under new ownership with ongoing community and infrastructure improvements, creating a fresh opportunity for affordable homeownership in the Portland area.Home is proposed/new construction. Price, features, and specifications subject to change. Photos/renderings may show options. LA has financial interest in community. Buyer to verify all information including space rent, community rules, and financing. Placement subject to park approval. Financing options available.
Location
State OR
County Multnomah
Listed by Shannon Lambert • The Broker Network, LLC
Nearby Locations

"My job is to find and attract mastery-based agents to the office, protect the culture, and make sure everyone is happy! "





